ϱû, ġ 1 ߾ڽɻ
Ϻ ڳ hyun@schooli.krԷ : 2019. 02. 01() 11:13

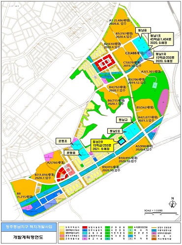
2021 ûֵ (Ī) 2 ż
[iTV]ϱû ûֵ (Ī)2 1 ߾ڽɻ翡 εƴٰ . 2019 1 25() 1 ߾ڽɻ Ʊ ȭ å ġ ǽߴ.
ûֵ 17 14õ709밡 ߵǴ Ը ν, ϱû , , 2, 3, 2, 1 8 б(ġ) Ȯߴ.
2020 9 () ǥ (Ī)1, (Ī)1 ؼ ̸, ̹ 1 ߾ڽɻ翡 б(ġ) ߾ӿ ġ (Ī)2 ġ.
ٸ б о Ȳ ̿ б ż ̴.
û 12 9,783 ְ ۵Ǵ ŭ ּ л() п 2021 3 ǥ ϰڴٰ .
û ڴ ε ֹε л() б(ġ) ֵ ּ ϰڴ. ߴ.
ûֵ 17 14õ709밡 ߵǴ Ը ν, ϱû , , 2, 3, 2, 1 8 б(ġ) Ȯߴ.
2020 9 () ǥ (Ī)1, (Ī)1 ؼ ̸, ̹ 1 ߾ڽɻ翡 б(ġ) ߾ӿ ġ (Ī)2 ġ.
ٸ б о Ȳ ̿ б ż ̴.
û 12 9,783 ְ ۵Ǵ ŭ ּ л() п 2021 3 ǥ ϰڴٰ .
û ڴ ε ֹε л() б(ġ) ֵ ּ ϰڴ. ߴ.
